WG: 4-Zi-Wohnung zentral in Lörrach: TOP-Kapitalanlage mit 5,5% Rendite!
Beschreibung:
Ihre Chance im Herzen von Lörrach!Attraktive Kapitalanlage oder Eigenheim in zentraler Lage
Objektbeschreibung:
Nutzen Sie diese einmalige Gelegenheit und sichern Sie sich eine äußerst profitable 4-Zimmer-Eigentumswohnung in bester Lage von Lörrach-Stadt! Diese Immobilie ist nicht nur als Kapitalanlage, sondern auch für den Eigenbedarf bestens geeignet.
Aktuell ist die Wohnung als Wohngemeinschaft an vier Mieter vermietet, die jeweils eine Warmmiete von 480,- € pro Monat zahlen. Daraus ergibt sich eine gesamte Warmmiete von 1.920,- € pro Monat. Die Kaltmiete liegt bei ca. 1.500,- € monatlich. Die Wohnung ist voll vermietet, sodass Sie sofort von den Mieteinnahmen profitieren können. Für den Fall der Eigennutzung enthalten die Mietverträge Sonderkündigungsrechte, die Ihnen Flexibilität und Sicherheit bieten.
Highlights der Immobilie:
Perfekt als Kapitalanlage oder für den Eigenbedarf geeignet
Zentrale und dennoch ruhige Lage in der begehrten Unteren Hartmattenstraße
Attraktive Mieteinnahmen: Gesamte Warmmiete 1.920,- € / Monat
Vollständig vermietet, sofortige Einnahmen
Renovierung und WG-gerechte Aufteilung erfolgten 2020
Neuwertige Fenster (2020, 2-fach verglast, Kunststoffrahmen)
Massives Gebäude Baujahr 1968
Zentralheizung mit Brennwerttherme (BJ 2020)
Inklusive sämtlicher Möbel und Küche, direkt bezugs- oder vermietbar
PKW-Stellplatz im Freien inklusive
Kellerraum ca. 7 qm im Kaufpreis inbegriffen
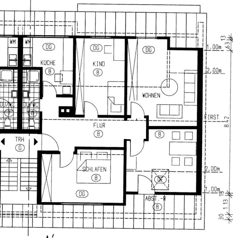
83 qm Wohnfläche mit optimaler Raumaufteilung
Lage:
Die Wohnung befindet sich in einer ruhigen, aber zentralen Lage in der Unteren Hartmattenstraße in Lörrach. Sie profitieren von einer hervorragenden Infrastruktur mit kurzen Wegen zu allen wichtigen Einrichtungen, Einkaufsmöglichkeiten und öffentlichen Verkehrsmitteln. Die Lage ist sowohl bei Mietern als auch bei Eigentümern sehr beliebt und bietet eine hohe Lebensqualität.
Technische Details:
Wohnfläche: ca. 83 qm
Baujahr: 1968
Heizung: Zentralheizung mit moderner Brennwerttherme (BJ 2020)
Fenster: 2-fach verglast, Kunststoffrahmen (2020)
Etage: 3. OG / Dachgeschoss mit Gauben
Keller: ca. 7 qm
PKW-Stellplatz: im Freien
Kaufpreis: 319.000,- zzgl. 3,57 % Käuferprovision
Fazit:
Diese Immobilie bietet Ihnen eine hervorragende Rendite und zugleich die Möglichkeit, sie als Eigenheim zu nutzen. Durch die bereits erfolgte Renovierung und die hochwertige Ausstattung ist die Wohnung sowohl für Kapitalanleger als auch für Eigennutzer eine lohnenswerte Investition.
Kontaktieren Sie uns für weitere Informationen und zur Vereinbarung eines Besichtigungstermins. Greifen Sie zu, bevor es ein anderer tut!
KP: Auf Anfrage zzgl. 3,57% Käuferprovision
Lagebeschreibung:
Lörrach ist eine Kreisstadt im Südwesten Baden-Württembergs. Sie ist die größte Stadt des gleichnamigen Landkreises und seit dem 1. April 1956 Große Kreisstadt. In der näheren Umgebung liegen der Schwarzwald, das Rheintal sowie Weil am Rhein und die Schweizer Großstadt Basel.Lörrach pflegt eine lebendige Kultur- und Kleinkunstszene. Eines der Highlights ist der Burghof Lörrach. Ob Musik oder Tanz, Kabarett, Literatur oder Theater. Ob etabliert oder experimentell. Mit seinem ambitionierten Programm begeistert er große wie kleine Kulturliebhaber.
Lörrachs 49.000 Einwohner sind sich einig: Hier lebt es sich gut und das spricht sich herum über die Stadtgrenzen hinaus, denn Lörrach wächst stetig. Hier ist alles Wichtige gleich um die Ecke: Schulen, Ärzte, Wochenmarkt – bis hin zur gut sortierten Stadtbibliothek.
Eltern schätzen die gute Kinderbetreuung und das Ferienprogramm. Auch in Sachen Bildung und Sport bleibt Lörrach mit einem breiten Angebot stets am Ball.
Verkehrstechnisch ist Lörrach bestens angebunden: Der trinationale Flughafen Euroairport, die A98 und das gut ausgebaute Fahrrad-, Bus- und S-Bahnnetz verbinden mit den Nachbarn und der Welt. Nicht ganz unwichtig! Arbeiten doch viele Lörracher als Grenzgänger in der benachbarten Schweiz.
Ausstattung:
- Unterkellert
Energieausweis:
- A+
- A
- B
- C
- D
- E
- F
- G
- H
- Baujahr:
- 1968
- EndenergieVerbrauch:
- 108 kWh/(m²a)
- Energieausweis:
- Verbrauchsausweis
- Energieeffizienzklasse:
- D
- Energieausweis gültig bis:
- 15.07.2029
- wesentlicher Energieträger:
- Gas
- Baujahr lt. Energieausweis:
- 2020
Sie wollen mehr erfahren?
Wenn Sie uns eine Nachricht über das Kontaktformular senden, melden wir uns schnellstmöglich bei Ihnen:











