Saniertes Dreifamilienhaus mit zwei Garagen und großem Garten in guter Lage von Grenzach-Wyhlen
Beschreibung:
Dieses frisch kernsanierte Dreifamilienhaus Baujahr 1963 liegt in sehr guter Lage im Ortsteil Grenzach in direkter Nähe zur Schweizer Grenze. Das Haus besitzt eine gesamt Wohnfläche von ca. 272 m² zzgl. eines großen Dachstudios mit ca. 73 m2 Grundfläche mit einem Grundstück von ca. 1.219 m². Die Immobilie verfügt über drei Wohnetagen zzgl. Kellerräume und bietet Ihnen aufgrund der Größe und der Vielzahl an Räumlichkeiten besonders vielfältige Nutzungs- und Wohnmöglichkeiten.Die Highlights sind:
Drei Wohnetagen, die als separate Wohnungen genutzt werden können:
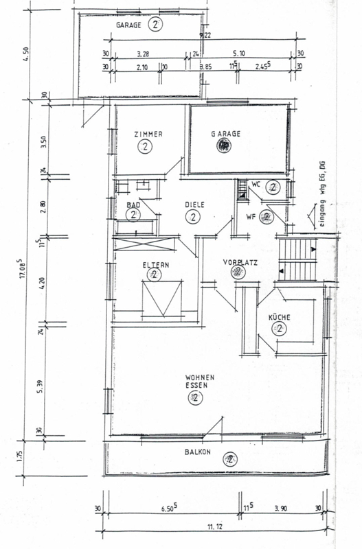
EG: barrierefreier Zugang, WZ/EZ, Küche, 2 SZ, Bad, Gäste-WC
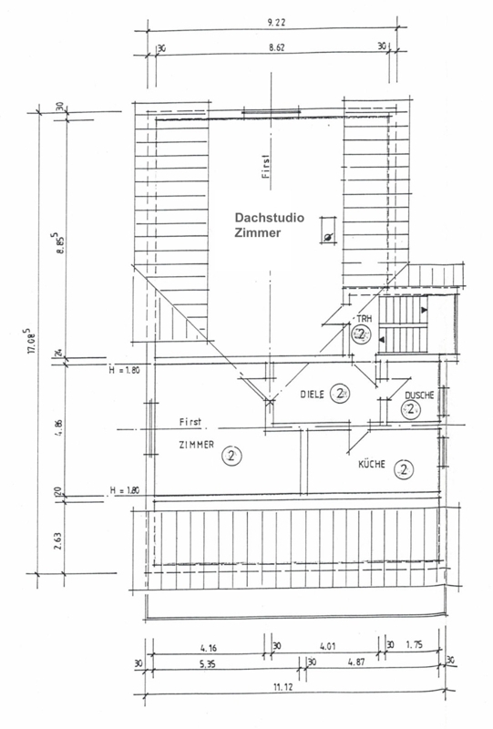
DG: 1,5-Zimmer Wohnung mit Küche und Bad sowie zusätzl. großes Dachzimmer
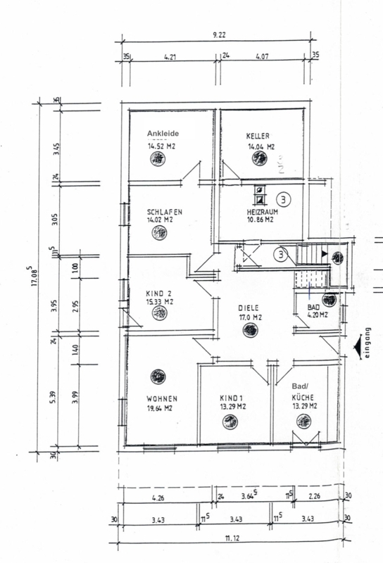
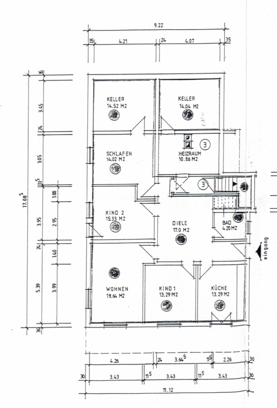
UG: 3 SZ, Bad/Küche, 2. Bad, zwei Hobbyräume, Heizraum, Kellerraum, eigener Zugang
Großzügige und sehr gute Raumaufteilung in allen Wohneinheiten
Die Immobilie wurde 2022/2023 komplett kernsaniert inkl. neuem Dach mit neuer Dämmung, neuer Elektrik, 2-fach Isolierverglasten Kunststoff Fenstern z. T. mit elektrischen Rollläden, neue Türen, Estriche und sämtliche Böden sowie Wände wurden erneuert, Sanitär/Bäder, Fussbodenheizung im gesamten Haus. Zudem befindet sich im EG eine hochwertige moderne Einbauküche.
Die Immobilie verfügt über eine Solaranlage für Warmwasser und Photovoltaikanlage BJ 2010 in Kombination mit einer Gaszentralheizung BJ 2012.
Im Außenbereich befinden sich zwei Einzelgaragen, ein großer Schopf, der als Carport umfunktioniert werden kann mit eigener Zufahrt, ein großer Garten vor und hinter dem Haus
Terrassen und Balkon.
Das Dreifamilienhaus ist ideal für Mehrgenerationen-Wohnen, Arbeiten und Wohnen unter einem Dach oder als Kapitalanlage zur Vermietung.
Die Immobilie wird aktuell komplett von den Eigentümern selbst bewohnt und ist nach Vereinbarung frei und verfügbar.
Lagebeschreibung:
Grenzach-Wyhlen liegt in Baden-Württemberg im Landkreis Lörrach (Dreiländereck Schweiz, Frankreich, Deutschland direkt am Rhein und an den Ausläufern des Südschwarzwalds). Die Stadt bietet eine ideale Anbindung in die Schweiz, ins Elsass, den Schwarzwald oder in Richtung Bodensee. Die Immobilie liegt im Ortsteil Grenzach, in unmittelbarer Nähe zur Schweizer Grenze. Es besteht eine regelmäßige Busverbindung nach Basel, eine Bushaltestelle ist fußläufig in wenigen Minuten erreichbar. Die verschiedenen Einkaufsmöglichkeiten sowie Ärzte, Schulen und Kindergärten sind bequem und in wenigen Minuten mit Bus, Auto oder Fahrrad zu erreichen.Basel: 7 km
Lörrach: 14 km
Mulhouse: 42 km
Freiburg: 72 km
Weitere umfassende und interessante Informationen erhalten Sie im unter: www.grenzach-wyhlen.de
Ausstattung:
- Balkon
- Terrasse
- Unterkellert
Energieausweis:
- A+
- A
- B
- C
- D
- E
- F
- G
- H
- Baujahr:
- 1963
- EndenergieBedarf:
- 183,26 kWh/(m²a)
- Energieausweis:
- Bedarfsausweis
- Energieeffizienzklasse:
- F
- Energieausweis gültig bis:
- 20.10.2031
- wesentlicher Energieträger:
- Gas
- Baujahr lt. Energieausweis:
- 1963
Ausstattungsbeschreibung:
Im EG befindet sich eine 3,5-Zimmer WHG mit Küche, Tageslichtbad, Gäste-WC sowie Eingangs-/Flurbereich mit ca. 133 m2 Wfl. Über den Eingangsbereich mit Garderobe haben Sie Zugang zu den EG-Räumen sowie dem Treppenhaus. Das EG ist unterteilt in ein großes Wohn-/Esszimmer mit Balkon u. schönem Ausblick in den Garten, angrenzend an das WZ/EZ befindet sich die helle Küche mit hochwertiger EBK. Der zweite Bereich der EG-WHG ist aufgeteilt in einen Vorraum mit Zugang zu zwei Schlafzimmern und einem Tageslichtbad mit ebenerdiger Dusche.Im DG liegt eine 1,5-Zimmer WHG mit Küche, Tageslichtbad und Flur mit ca. 47 m2 Wfl. Zudem befindet sich im DG ein separater ausgebauter großer Dachraum mit einer Grundfläche von ca. 73 m2, der ebenfalls als Wohnraum genutzt werden kann.
Im UG erwartet Sie auch ein vielfältiges Raumangebot: Eine große, abgeschlossene WHG mit ca. 93 m2 Wfl., mit Zugang vom Treppenhaus aus sowie eigenem Zugang von außen. Die Wohnung verfügt über einen großen Vorraum, drei Schlafzimmer, ein Bad/Küche mit Zugang zur Terrasse u. Garten, einen Hobby- und Kellerraum sowie ein weiteres Tageslichtbadezimmer.
Die Haustechnik befindet sich ebenfalls im UG. Getrennt von der UG-WHG sind im Heizungsraum die moderne Gaszentralheizung BJ 2012 mit Solar für Warmwasser u. Photovoltaik-Anlage BJ 2010 installiert sowie die neue Elektrik BJ 2022/2023. Ein weiterer Kellerraum steht als Stauraum zur Verfügung.
Die Immobilie ist komplett kernsaniert. Der Vorplatz des Hauses ist barrierefrei zur Eingangstüre im EG gestaltet.
Neben dem Hauseingang befindet sich ein Anbau mit zwei großen Garagen mit zusätzlichem Stauraum im Dachspitz des Anbaus.
Sonstige Angaben:
Der Kaufpreis für diese schöne Dreifamilienhaus beträgt: 995.000,- €Wir freuen uns auf Ihre Anfrage und stehen Ihnen zur Vereinbarung eines Besichtigungstermins gerne zur Verfügung.
-----------
Verpassen Sie keine Immobilie mehr!
Unser komplettes Immobilienangebot finden Sie immer zuerst auf www.remax.de
Gerne helfen wir Ihnen auch beim Verkauf oder der Vermietung Ihrer Immobilie.
Karriere bei REMAX?
Infos: www.remax.de/karriere
Sie wollen mehr erfahren?
Wenn Sie uns eine Nachricht über das Kontaktformular senden, melden wir uns schnellstmöglich bei Ihnen:
















































