Wohnen im Herzen von Lörrach! 3-Zimmer-Wohnung im 2. Obergeschoss mit Dachausbaumöglichkeiten!
Beschreibung:
Diese wunderschöne 3-Zimmer-Wohnung, mit ca. 71 m² Wohnfläche befindet sich im 2. OG in einem historischen Altbau aus dem Jahr 1898 und wurde 1996 umfassend modernisiert wurde.Die Wohnung besticht durch ihren einzigartigen Charme. Die kunstvollen Stuckverzierungen verleihen den Räumen eine elegante und nostalgische Atmosphäre. Die großzügigen Fenster sorgen für lichtdurchflutete Räume, während die original erhaltenen Details den klassischen Altbau-Charakter unterstreichen. Hier trifft zeitlose Architektur auf wohnlichen Komfort – ein perfektes Zuhause für Liebhaber historischer Bauten.
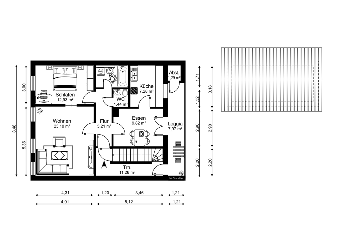
Die Wohnung verfügt über insgesamt 3 Zimmer, wovon eines als Schlafzimmer, eins als Wohnzimmer und das dritte als Esszimmer genutzt werden. Das Wohnzimmer bietet ca. 23 m².
Das Badezimmer ist mit einer Badewanne und einem praktischen Waschmaschinenanschluss ausgestattet,. Die Toilette befindet sich separat und sorgt für zusätzlichen Komfort.
Die Küche ist über das Esszimmer, welches als Durchgangszimmer dient, erreichbar.
Von dem Esszimmer aus haben Sie einen Zugang zu einer lauschigen Laube mit Blick in den Garten – perfekt für entspannte Stunden.
Das Esszimmer bietet ausreichend Platz für einen Esstisch, sowie Schränke für Ihre Geschirr.
Ein besonderes Highlight ist das Ausbaupotential. Das zur Wohnung gehörende Dachgeschoss kann nach einem Ausbau zusätzlichen Wohnraum von ca. 50 m² bieten und sich in eine großzügige Maisonette verwandeln. Dies eröffnet zahlreiche Gestaltungs- und Nutzungsmöglichkeiten, um Ihre Wohnträume zu verwirklichen.
Zusätzliche Annehmlichkeiten dieser Immobilie, die Ihre Lebensqualität erhöhen, umfassen die Mitnutzung eines Gartens, einen gemütlichen Freisitz sowie einen praktischen Fahrradabstellplatz. Außerdem steht Ihnen zusätzliche Nutzfläche im Schuppen zur Verfügung.
Die letzte umfassende Modernisierung der Wohnung fand im Jahr 1996 statt, was eine solide Basis bietet, auf der Sie Ihre persönlichen Modernisierungswünsche verwirklichen können. Der einladende und gut unterkellerte Altbau besticht durch seine Lage in einer begehrten Wohngegend von Lörrach, die nicht nur durch eine ausgezeichnete Infrastruktur, sondern auch durch ihre Nähe zur Natur besticht.
Entdecken Sie das volle Potenzial dieser Immobilie und machen Sie diese Wohnung zu Ihrem neuen, stilvollen Rückzugsort im urbanen Umfeld von Lörrach.
Wir laden Sie herzlich ein, sich selbst von der einzigartigen Atmosphäre dieser besonderen Immobilie zu überzeugen, Vereinbaren Sie noch heute einen Besichtigungstermin.
Kaufnebenkosten
- 5% Grunderwerbssteuer
- ca. 1,5 % Notarkosten/ Grundbuch
- 3,57 % Käuferprovision (inkl. 19% MwSt.)
Lagebeschreibung:
Die angebotene Etagenwohnung befindet sich in einer attraktiven Lage von Lörrach, im Dreiländereck Deutschland, Frankreich und Schweiz. Die Region steht für hohe Lebensqualität und Freizeitwert.Die Wohnung liegt zentral in einem ruhigen Viertel mit einer perfekten Mischung aus urbanem Flair und Natur. Einkaufsmöglichkeiten, Cafés und Restaurants sind fußläufig erreichbar, ebenso wie Kindergärten und Schulen. Perfekte Anbindung an den öffentlichen Verkehr ermöglicht schnellen Zugang zum Stadtzentrum und näheres Umland.
Der nahe Schwarzwald und die Rheinauen bieten ideale Bedingungen für Spaziergänge und Fahrradtouren. Erleben Sie städtisches Leben in harmonischer Verbindung mit Natur in dieser begehrten Wohnlage.
Ausstattung:
- Abstellraum
- Unterkellert
Energieausweis:
- Baujahr:
- 1898
- wesentlicher Energieträger:
- Gas
Sie wollen mehr erfahren?
Wenn Sie uns eine Nachricht über das Kontaktformular senden, melden wir uns schnellstmöglich bei Ihnen:





















