Modernes, saniertes Mehrfamilienhaus mit Gewerbe u. TOP-Rendite in zentraler Lage von Brombach
Beschreibung:
Dieses komplett sanierte und sehr gepflegte Wohn- und Geschäftshaus Baujahr ca. 1970 befindet sich in sehr guter, zentraler Lage von Lörrach-Brombach auf einem Grundstück mit ca. 337 m2. Die Immobilie verfügt über eine Gastronomie im EG sowie über drei Wohnungen.Im Hinterhaus EG befindet sich eine große 3-Zimmer Wohnung mit eigenem Eingang mit ca. 98 m2, im 1. OG liegt ein sehr große 4,5-Zimmer Wohnung mit ca. 134 m2 mit Balkon und im 2. OG befindet sich eine 4-Zimmer Wohnung mit großer Dachterrasse mit ca. 93 m2.
Die gesamte Wohn-/Nutzfläche beträgt ca. 499,5 m² inkl. Kellerräume im UG und zwei Stellplätzen. Die Immobilie ist voll unterkellert, mit Kellerräumen für die Wohnungen und die Gastronomie. Beheizt wird die Immobilie durch einzelne, moderne Gasetagenheizungen.
Die Immobilie wurde komplett saniert und befindet sich in einem neuwertigen Zustand.
Zwei Wohnungen im Haus sind vermietet, eine Wohnung wird von den Eigentümer selbst genutzt und steht bei Verkauf nach Vereinbarung zur Verfügung. Die Gastronomie ist ebenfalls vermietet.
Die zu erwartenden Mieteinnahmen per Anno für die komplette Immobilie belaufen sich auf rund 64.000,- €. Für weitere Informationen dazu, stehen wir Ihnen gerne zur Verfügung!
Lagebeschreibung:
Das angebotene Mehrfamilienhaus befindet sich in der charmanten Stadt Lörrach im wunderschönen Südwesten Deutschlands. Diese Stadt, gelegen im Dreiländereck an der Grenze zur Schweiz und zu Frankreich, bietet eine hervorragende Mischung aus urbanem Flair und naturnaher Lebensweise. Lörrach ist bekannt für seine gut ausgebaute Infrastruktur und die exzellente Anbindung an das öffentliche Verkehrsnetz, was Pendlern eine bequeme Erreichbarkeit der Städte Basel und Freiburg ermöglicht. In unmittelbarer Umgebung des Objekts finden sich zahlreiche Geschäfte des täglichen Bedarfs, Schulen, und medizinische Einrichtungen, die eine hohe Lebensqualität gewährleisten. Die Nähe zum Schwarzwald und der Weinregion Markgräflerland eröffnet zusätzlich vielfältige Freizeitmöglichkeiten für Naturliebhaber und Gourmets. Die kulturelle Vielfalt und das umfangreiche Freizeitangebot machen Lörrach zu einem attraktiven Standort sowohl für Familien als auch Investoren, die von den wirtschaftlichen Chancen der Region profitieren möchten.Ausstattung:
- Balkon
- Terrasse
- Unterkellert
Energieausweis:
- Baujahr:
- 1970
- wesentlicher Energieträger:
- Gas
Ausstattungsbeschreibung:
EG: Die Gastronomie im EG (ca. 71 m2), mit großer Schaufensterfront, ist aufgeteilt in einen großen und einen kleinen Gastraum, einen Thekenbereich sowie eine Küche und zwei WCs. Sitzplätze befinden sich zudem draußen vor der Gastronomie. Im UG befindet sich ein großer Lagerraum für die Gastronomie.Über den Hauseingang und das Treppenhaus gelangen Sie in die beiden Wohnetagen:
1. OG: Die sehr große 4,5-Zimmer WHG mit ca.134 m² verfügt über einen großen Flur, drei Schlafzimmer, ein Esszimmer mit offener Küche mit EBK, ein Tageslichtbadezimmer mit Badewanne, Dusche, WC, Waschtisch, Waschmaschine/Trockner, sowie ein sehr großes Wohnzimmer und einen Balkon.
2. OG: Die gut geschnittenen 4-Zimmer WHG mit ca. 93 m² besitzt einen Flur, ein großes Wohnzimmer, drei Schlafzimmer, eine Küche mit EBK, ein Gäste-WC mit Anschluss für Waschmaschine und Trockner sowie ein Badezimmer mit Dusche, Waschtisch und WC. Ein Highlight dieser Wohnung ist die große zum Teil überdachte Dachterrasse.
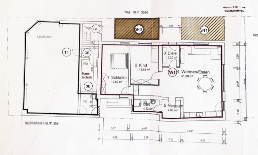
EG im Hinterhaus: Die großzügige 3-Zimmer WHG mit ca. 98 m², verfügt über einen großen Flur, ein Wohnzimmer mit Zugang zur Wohnküche mit EBK, zwei Schlafzimmer sowie ein Badezimmer mit Dusche, Waschtisch, WC und Anschlüssen für Waschmaschine u. Trockner.
UG: Die Immobilie ist bis auf den Anbau unterkellert.
Sonstige Angaben:
Der Kaufpreis für dieses moderne Mehrfamilienhaus beträgt: 1,76 Mio. EuroWir freuen uns auf Ihre Anfrage und stehen Ihnen für weitere Informationen und zur Vereinbarung eines Besichtigungstermins gerne zur Verfügung.
---
Verpassen Sie keine Immobilie mehr!
Unser komplettes Immobilienangebot finden Sie immer zuerst auf www.remax.de
Gerne helfen wir Ihnen auch beim Verkauf oder der Vermietung Ihrer Immobilie.
Karriere bei REMAX?
Infos: www.remax.de/karriere
Sie wollen mehr erfahren?
Wenn Sie uns eine Nachricht über das Kontaktformular senden, melden wir uns schnellstmöglich bei Ihnen:






















































