Top-Investment: Projektierter Neubau mit 7 Wohneinheiten inklusive Penthouse und Blick auf den Rhein
Beschreibung:
Zum Verkauf steht ein Grundstück inklusive Projektierung und Baugenehmigung für ein modernes Mehrfamilienhaus mit insgesamt 7 hochwertig geplanten Wohneinheiten. Das Projekt bietet ein attraktives Investment mit viel Potenzial in begehrter Lage, mit direktem Blick auf den Rhein.Die Highlights im Überblick:
Geplantes Mehrfamilienhaus mit 7 Wohneinheiten
Jede Einheit verfügt über 2 Stellplätze
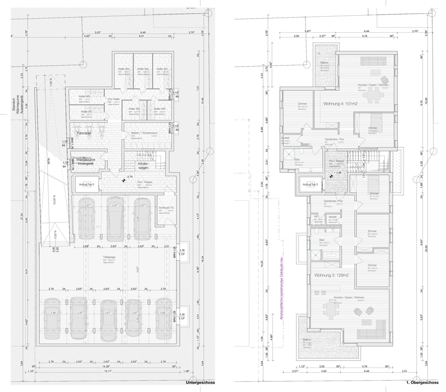
Insgesamt 14 Stellplätze für eine komfortable Parksituation
Mit Aufzug und Tiefgarage
Alle Wohnungen mit Balkon oder Terrasse – ideal für zeitgemäßes Wohnen mit Freiraum
Das absolute Highlight wird das Penthouse im Dachgeschoss, mit 169qm Wohnfläche und zwei großen Terrassen, die fast das ganze Penthouse umschließen.
Dieses Projekt bietet sowohl Kapitalanlegern als auch Bauträgern eine hervorragende Möglichkeit, ein zukunftsfähiges Wohnkonzept in gefragter Lage zu realisieren.
Lagebeschreibung:
Rheinfelden ist als der sonnigste Ort Deutschlands betitelt worden und genießt weit über seine Grenzen hinaus hohes Ansehen: Viele kulturelle und historische Sehenswürdigkeiten erfreuen Besucher und Bewohner aus aller Welt.Durch die Lage im äußersten Südwesten Deutschlands sind sowohl die Schweiz als auch Frankreich in wenigen Fahrminuten zu erreichen.
Mit zahlreichen Einkaufs- Dienstleistungs- sowie Freizeitmöglichkeiten und anderen wichtigen Institutionen wie Schulen, Kindergärten und Ärzten ist alles geboten und schnell zu erreichen.
weitere Ziele:
Lörrach: 12 km
Bad Säckingen 16 km
Basel 30 km
Zürich 70 km
Ausstattung:
- Personenaufzug
- Abstellraum
- Balkon
- Terrasse
- Unterkellert
Energieausweis:
Ausstattungsbeschreibung:
EG: WHG 1:119 m²
49qm großer Wohn-Essbereich mit offener Küche,
3 Schlafzimmer,
Garderobe,
Abstellraum,
Bad mit Dusche und Wanne
Gäste WC
Terrasse
EG: WHG 2:
65 m²
36,42qm großer Wohn-Essbereich mit offener Küche,
1 Schlafzimmer,
Garderobe,
Bad mit Dusche
Terrasse
1OG: WHG 3: 129 m²
54,52qm großer Wohn-Essbereich mit offener Küche,
3 Schlafzimmer,
Garderobe,
Abstellraum,
Bad mit Dusche und Wanne
Gäste WC
Balkon
1OG: WHG 4: 104 m²
47,79qm großer Wohn-Essbereich mit offener Küche,
2 Schlafzimmer,
Garderobe,
Abstellraum,
Bad mit Dusche
Balkon
2OG: WHG 5: 98 m²
47,33qm großer Wohn-Essbereich mit offener Küche,
2 Schlafzimmer,
Garderobe,
Bad mit Dusche
Terrasse und
Balkon
2OG: WHG 6: 94 m²
42,65qm großer Wohn-Essbereich mit offener Küche,
2 Schlafzimmer,
Garderobe,
Abstellraum,
Bad mit Dusche
Balkon
DG: WHG7 : 169 m²
57qm großer Wohn-Essbereich mit offener Küche,
3 Schlafzimmer,
Garderobe,
Abstellraum,
Bad mit Dusche
Gäste WC
2 Terrassen und
ein Balkon
Untergeschoss:
Wasch-Trockenraum
Tiefgarage
Insgesamt wie auch im Bauantrag 781 m² + 14 PKW Stellplätze
Sonstige Angaben:
Verpassen Sie keine Immobilie mehr!Unser komplettes Immobilienangebot finden Sie immer zuerst auf www.remax.de.
Gerne helfen wir Ihnen auch beim Verkauf oder der Vermietung Ihrer Immobilie. Wir freuen uns sehr, wenn Sie uns weiterempfehlen.
Sie wollen mehr erfahren?
Wenn Sie uns eine Nachricht über das Kontaktformular senden, melden wir uns schnellstmöglich bei Ihnen:






