Zweifamilienhaus - Kauf

Zweifamilienhaus wartet auf Sanierung - Nutzen Sie die Gelegenheit!

280.000 €
Vermarktungsart
Kauf
Objektart
Haus
Objekttyp
Zweifamilienhaus
Wohnfläche
162 m²
Grundstück
280 m²
Zimmer
7
Schlafzimmer
5
Badezimmer
2
Anzahl sep. WC
1
Provision (Interessentenseite)
3,57 % inkl. gesetzl. MwSt. (19%)
Barrierefrei
Nein
Fahrstuhl
Abstellraum
Nein
Unterkellert
Teilweise
Preis auf Anfrage
Nein

Beschreibung:

Willkommen in Ihrem zukünftigen Zuhause in Wehr – ein charmantes Zweifamilienhaus aus der Jahrhundertwende, das ideal als Mehrgenerationenhaus geeignet ist. Dieses sanierungsbedürftige Anwesen bietet eine einzigartige Gelegenheit zur Gestaltung nach Ihren eigenen Vorstellungen.

Mit einer Grundstücksgröße von 280 m² und einer bestehenden Wohnfläche von ca. 92 m² im Obergeschoss präsentiert sich dieses Haus als echtes Raumwunder. Besonders attraktiv ist das Erdgeschoss, das ca. 60-80 m² Wohnfläche zum ausgebaut bietet. Die Raumhöhe sind besonders hoch. Visionäre Bauherren können sich hier ihr eigenes Refugium schaffen, denn die Möglichkeit, zwei separate Eingänge zu integrieren, eröffnet flexible Wohnkonzepte für Mehrfamilien- oder Mehrgenerationenlösungen.

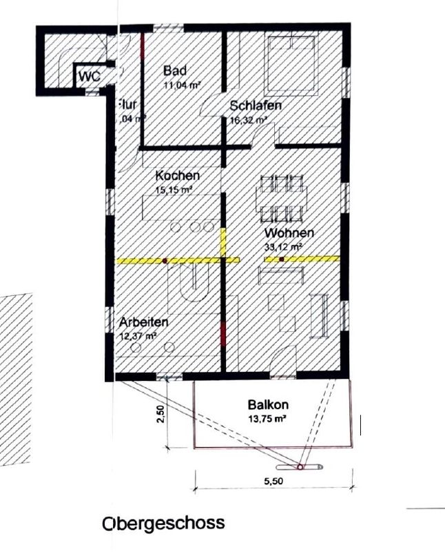
Das Obergeschoss verfügt derzeit über 3 Zimmer, darunter 1 Schlafzimmer, 1 Küche, 1 Badezimmer, ein Gäste-WC, sowie ein weiteres, sich im Ausbau befindendes großes Badezimmer.

Ein gemütlicher Kamin verleiht der Wohnung im Obergeschoss zusätzlichen Charme und Wärme. Diese Oase der Gemütlichkeit lädt zum Verweilen ein und sorgt auch an kalten Tagen für ein behagliches Ambiente.

Aus dem aktuellen Badezimmer führt eine Treppe in das noch nicht ausgebaute Dachgeschoss. Der Zugang zum Balkon findet sich ebenfalls im aktuellen Badezimmer.

Teilweise unterkellert, bietet das Haus zusätzlichen Stauraum und praktische Nutzungsmöglichkeiten. Investieren Sie in diese Immobilie und genießen Sie die ländliche Idylle von Wehr, während Sie gleichzeitig von der Nähe zur städtischen Infrastruktur profitieren.

Diese Immobilie besticht durch eine Solaranlage, das Modell STAqua mono, die sowohl umweltfreundlich als auch effizient ist. Diese hochwertige Solaranlage sorgt für eine nachhaltige Warmwasseraufbereitung und trägt somit zur Reduzierung der Energiekosten bei.

Verpassen Sie nicht die Chance, dieses geschichtsträchtige Haus in Ihr persönliches Traumdomizil zu verwandeln. Entdecken Sie das Potenzial dieser besonderen Immobilie – wir freuen uns darauf, Ihnen alle Optionen und Möglichkeiten bei einem persönlichen Besichtigungstermin vorzustellen.

Lagebeschreibung:

Das zweifamilienhaus befindet sich in der charmanten und ruhigen Stadt Wehr, eingebettet in die malerische Landschaft des südlichen Schwarzwalds. Wehr bietet eine harmonische Mischung aus natürlicher Umgebung und städtischem Komfort. Die Umgebung besticht durch ihre grüne, hügelige Landschaft, die besonders Naturliebhabern zahlreiche Wander- und Freizeitmöglichkeiten eröffnet.

Die Stadt Wehr zeichnet sich durch eine exzellente Infrastruktur aus. Verschiedene Einkaufsmöglichkeiten, Restaurants, Cafés und zahlreiche Dienstleistungen sind bequem zu erreichen. Familien profitieren von der Nähe zu Schulen und Kindergärten, während Berufspendler die schnellen Verkehrsanbindungen schätzen – von Wehr aus gelangt man schnell in die umliegenden Städte wie Bad Säckingen oder Lörrach.

Die öffentliche Verkehrsanbindung ist hervorragend ausgebaut, mit regelmäßigen Busverbindungen, die Sie zügig an Ihr gewünschtes Ziel bringen. Zudem sorgt die Nähe zur Schweizer Grenze für internationale Anschlussmöglichkeiten und eine zusätzliche kulturelle Bereicherung.

Insgesamt bietet die Lage in Wehr alles was das Herz begehrt: eine idyllische und dennoch zentrale Lage mit allen Vorteilen moderner urbaner Infrastruktur und einem hohen Lebensstandard.

Ausstattung:

Unterkellert

Energieausweis:

Baujahr:
1900

Ausstattungsbeschreibung:

Das Erdgeschloss wartet darauf, ausgebaut zu werden! Hier lassen sich ca. 60-80 m² realisieren. Folgende vorhandenen Baumaterialien werden mitverkauft:

1 Glastüre
1 Glasschiebetüre
1 kompl neue Ikea-Küche noch unmontiert
35 Rigipsplatten 2m x 1,25 m x 18 mm
13 Rigipsplatten 2,6 m x 0,6 m x 18 mm
1,2 qm Ytongsteine 10 cm dick
ca. 20 qm Klick- Vinyl-Boden
48 Stck. Schieferfliessen 30x60 cm
24 Stck. glatte Fliessen grau matt 20x60 cm
16 qm ca.! spanische Mosaikfliessen 64x32 cm
1 Roro Nebeneingangstüre

Sonstige Angaben:

Kontaktieren Sie uns noch heute, um weitere Informationen zu erhalten oder einen Besichtigungstermin zu vereinbaren.

Kaufnebenkosten
- 5% Grunderwerbssteuer
- ca. 1,5 % Notarkosten/ Grundbuch
- 3,57 % Käuferprovision (inkl. 19% MwSt.)
Dr. Jörg Thalmann
Dr. Jörg Thalmann
RE/MAX in Lörrach
+49 7621/ 986 88 22
Jeder Lizenznehmer ist ein rechtlich eigenständiges Unternehmen und handelt auf eigene Rechnung und Verantwortung.