Baselblick! Großes Einfamilienhaus mit Einliegerwohnung und Garten
Beschreibung:
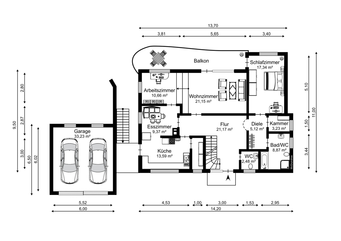
Diese Immobilie, erbaut im Jahr 1971, vereint klassische Architektur mit einem großzügigen Raumangebot und verzaubert durch ihre sehr ruhige Lage und einer Sicht bis nach Basel. Insgesamt bietet Ihnen diese Immobilie ca. 258 m² Wohnfläche, verteilt auf eine Haupt- und eine Einliegerwohnung, sowie eine Nutzfläche mit ca. 70 m². Das Grundstück misst 760 m².Die Hauptwohnung, mit ca. 175 m² Wohnfläche, erstreckt sich über das Erd- und Dachgeschoss und beeindruckt durch einen großen offenen Eingangsbereich. Die durchdachte Raumaufteilung, teilweise durch Einbauschränke getrennt, ermöglicht eine flexible Nutzung der Räume. Der Balkon bietet einen spektakulären Blick auf Basel und die umliegende Natur.
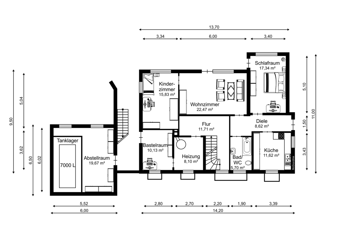
Das Schlafzimmer, als auch das Wohnzimmer bieten einen Zugang auf den Balkon. Neben dem Wohnzimmer befindet sich das Arbeitszimmer, welches nur durch einen Einbauschrank (auf beiden Seiten) verbunden ist. Das Esszimmer ist ebenfalls mit einem Einbauschrank von der Küche separiert.
Die Küche verfügt über eine angrenzende Speisekammer und einen direkten Zugang nach draußen. Dieser Ausgang bietet einen kurzen Weg z.B. zur Garage und eignet sich somit ideal, um Einkäufe schnell und bequem in die Küche zu bringen. Das Badezimmer im Erdgeschoss ist mit einer Badewanne und Sitzdusche ausgestattet. Daneben ist die Waschküche mit einem Waschmaschinenanschluss und einem großen Waschbecken untergebracht. Außerdem befindet sich im Eingangsbereich eine Gäste-Toilette.
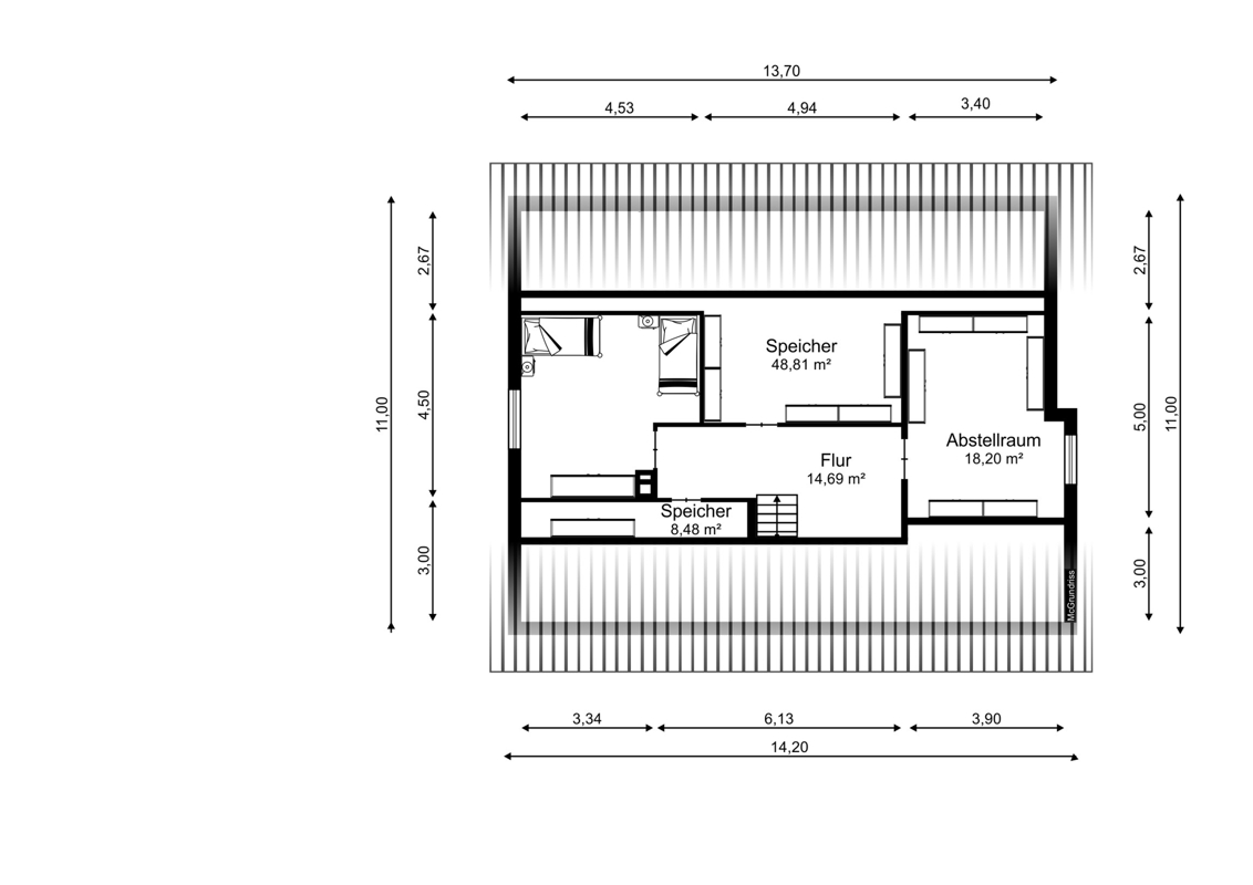
Im Dachgeschoss befinden sich zwei geräumige Zimmer, die als Kinder- oder Gästezimmer nutzbar sind. Das eine Zimmer verfügt über ein Waschbecken, das andere zusätzlich über eine separate Toilette. Ein großer Abstellraum und weiterer Stauraum im Kniestock nutzt den Raum unter der Dachschräge optimal aus.
Lagebeschreibung:
Das Einfamilienhaus befindet sich in der charmanten Gemeinde Inzlingen, eingebettet in die malerische Region des südlichen Schwarzwalds. Inzlingen besticht durch seine idyllische, naturnahe Umgebung und bietet gleichzeitig eine hervorragende Anbindung an das städtische Leben. Die angrenzende Stadt Lörrach sowie die nahegelegene Kulturmetropole Basel in der Schweiz sind in kurzer Zeit erreichbar und eröffnen Ihnen zahlreiche Möglichkeiten für Arbeit, Kultur und Freizeit.Die familienfreundliche Lage sorgt nicht nur für eine hohe Lebensqualität, sondern punktet auch mit einer ausgezeichneten Infrastruktur. In unmittelbarer Nähe befinden sich Einkaufsmöglichkeiten des täglichen Bedarfs, während Kindergärten, Schulen und Freizeiteinrichtungen die Bedürfnisse von Familien ideal abdecken.
Umgeben von einer reizvollen Landschaft, bietet Ihnen diese Wohnlage zahlreiche Freizeitmöglichkeiten in der Natur, sei es Wandern, Radfahren oder einfach nur entspannen und die Ruhe genießen.
Profitieren Sie von der Kombination aus naturnahem Wohnen und der urbanen Nähe zu wichtigen Zentren - eine seltene Gelegenheit, die Ihnen das Beste aus beiden Welten bietet.
Ausstattung:
- Abstellraum
- Balkon
- Terrasse
- Unterkellert
Energieausweis:
- A+
- A
- B
- C
- D
- E
- F
- G
- H
- Baujahr:
- 1971
- EndenergieBedarf:
- 238,7 kWh/(m²a)
- Energieausweis:
- Bedarfsausweis
- Energieeffizienzklasse:
- G
- Energieausweis gültig bis:
- 28.11.2034
- wesentlicher Energieträger:
- Gas
Ausstattungsbeschreibung:
Die Einliegerwohnung, mit ca. 83 m² Wohnfläche verteilt auf drei Zimmer, befindet sich im Kellergeschoss und verfügt über einen separaten Eingang an der Seite des Hauses. Der Zugang zum überdachten Freisitz und Garten ist sowohl vom Wohnzimmer als auch von einem weiteren Zimmer möglich. Diese Einheit ist ideal zur Vermietung, für Gäste oder für ein Mehrgenerationenkonzept geeignet und kann bei Bedarf mit einem einfachen Durchbruch in den Hauptwohnbereich integriert werden.Zusätzliche Highlights des Hauses umfassen die elektrischen Markisen sowohl bei der Haupt- als auch Einliegerwohnung, eine Doppelgarage mit 2 separaten elektrischen Einzeltoren, eine Gas-Zentralheizung (erneuert 2016) sowie eine Solaranlage zur Warmwasseraufbereitung.
Der Keller bietet, neben der Einliegerwohnung, auch weitere Nutzfläche. Unteranderem eine Werkstatt. Über eine umbauten "Durchgang" gelangt man in den ca. 20 m² großen Raum unter der Garage. Hier befindet sich der ehemalige Öl-Tank, welcher in einen Regenwasser-Tank umgewandelt wurde.
Der Garten bietet vielseitige Nutzungsmöglichkeiten und bietet einen überdachten Freisitz sowie Platz für z. B. Gemüseanbau oder Spielfläche für Kinder.
Kontaktieren Sie uns noch heute, um weitere Informationen zu erhalten oder einen Besichtigungstermin zu vereinbaren.
Kaufnebenkosten
- 5% Grunderwerbssteuer
- ca. 1,5 % Notarkosten/ Grundbuch
Sie wollen mehr erfahren?
Wenn Sie uns eine Nachricht über das Kontaktformular senden, melden wir uns schnellstmöglich bei Ihnen:
























