Denkmalgeschütze Doppelhaushälfte in zentraler Lage!
Beschreibung:
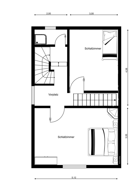
Diese denkmalgeschützte Doppelhaushälfte aus dem Jahr 1923 bietet Ihnen eine seltene Gelegenheit. Das Haus, auf einem Grundstück von 195 m² bietet eine Wohnfläche von ca. 100 m², welche sich über drei Etagen erstreckt und darauf wartet, mit Liebe renoviert zu werden.Das Raumangebot umfasst insgesamt fünf Zimmer, darunter vier Schlafzimmer, zwei Badezimmer und ein WC sorgen dafür, dass der morgendliche Trubel entspannt abläuft. Ein besonderes Highlight ist der Zugang von der Küche auf die Terrasse und in den Garten, der Ihnen einen ruhigen Rückzugsort im Freien bietet.
Das Herzstück des Hauses ist die Küche, welche über eine moderne Einbauküche mit Steh-Tresen verfügt.
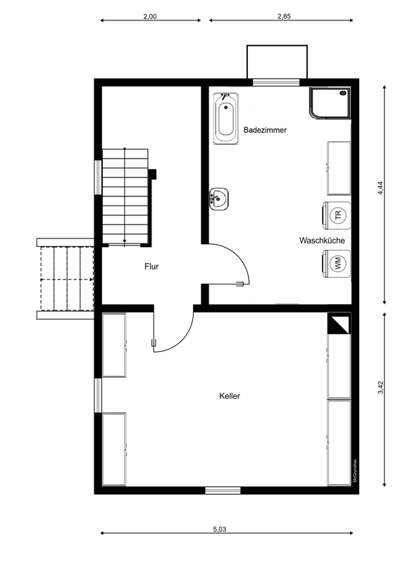
Das Hauptbadezimmer befindet sich im Untergeschoss und offeriert Ihnen eine Eckbadewanne sowie eine Dusche. Ebenso findet die Waschmaschine sowie ein Trockner ihren Platz. Die Gas-Heizung ist ebenfalls hier untergebracht. Zusätzliche stehen Ihnen in einem, Kellerraum ca. 20 m² Nutzfläche zur Verfügung.
Der Garten bietet genügend Platz um diesen in eine Oase zu verwandeln.
Ein Stellplatz befindet sich ebenfalls auf dem Grundstück.
Bei dem Objekt handelt es sich um ein denkmalgeschütztes Wohnhaus mit historischem Charme und bedeutender Bausubstanz. Für die Sanierung und Modernisierung liegen bereits behördlich genehmigte Renovierungspläne vor, die unter Berücksichtigung der denkmalpflegerischen Vorgaben entwickelt wurden.
Kaufnebenkosten
- 5% Grunderwerbssteuer
- ca. 1,5 % Notarkosten/ Grundbuch
Ergreifen Sie die Chance und gestalten Sie Ihr neues Heim ganz nach Ihren Vorstellungen!
Lagebeschreibung:
Willkommen in Weil am Rhein, einer Stadt im Dreiländereck, die für ihre hervorragende Lebensqualität und strategische Lage bekannt ist. Diese ansprechende Doppelhaushälfte befindet sich in einer zentralen, aber dennoch ruhigen Umgebung, die sowohl Familien als auch Berufstätige anspricht. Die Nachbarschaft zeichnet sich durch eine harmonische Mischung aus Wohnkomfort und urbaner Infrastruktur aus.In unmittelbarer Nähe finden Sie vielseitige Einkaufsmöglichkeiten, gemütliche Cafés und renommierte Restaurants, die das tägliche Leben bereichern. Für kulturelle Angebote und Freizeitaktivitäten sorgt das lebendige Stadtzentrum, das nur einen kurzen Spaziergang entfernt liegt. Bildungseinrichtungen und Kindergärten sind ebenfalls bequem erreichbar, was diese Lage besonders für Familien attraktiv macht.
Die exzellente Verkehrsanbindung bietet schnellen Zugang zu den öffentlichen Verkehrsmitteln und den Autobahnen, was Pendler, die in die umliegenden Städte pendeln, besonders schätzen. Darüber hinaus lädt die malerische Umgebung mit ihrer Nähe zum Rhein zu erholsamen Spaziergängen und Radtouren ein.
Erleben Sie in Weil am Rhein eine einzigartig ausgewogene Kombination aus gemütlichem Wohnen und städtischem Flair. Diese ideale Lage und das freundliche Ambiente machen diese Immobilie zu einem wahren Juwel in der Region.
Ausstattung:
- Terrasse
- Unterkellert
Energieausweis:
- Baujahr:
- 1923
Sie wollen mehr erfahren?
Wenn Sie uns eine Nachricht über das Kontaktformular senden, melden wir uns schnellstmöglich bei Ihnen:





















