4-Zi.-Wohnung - direkt an der Schweizer Grenze, mit Blick auf den Rhein!
Beschreibung:
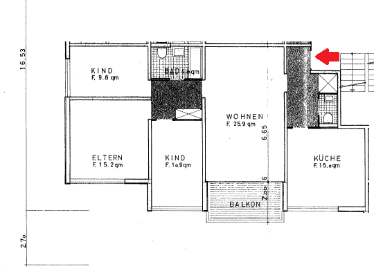
Willkommen in dieser charmanten 4-Zimmer-Etagenwohnung in Grenzach-Wyhlen, die Ihnen einen unvergleichlichen Blick auf den majestätischen Rhein bietet. Die im Jahr 1966 erbaute Wohnung befindet sich im 6. Obergeschoss und bietet eine großzügige Wohnfläche von ca. 93 m², verteilt auf ein Wohnzimmer, drei Schlafzimmer, eine Küche, ein Gäste-WC sowie ein einladendes Badezimmer, welches durch seine Funktionalität besticht.Das Highlight dieser Immobilie ist zweifelsohne der Balkon, auf dem Sie die idyllische Umgebung und den Blick auf den Rhein in vollen Zügen genießen können. Für mehr Komfort wurde der Balkon verglast und schafft dadurch mehr Nutzen.
Mit einem monatlichen Hausgeld von 580 € ist diese Etagenwohnung nicht nur ein idealer Rückzugsort, sondern auch eine wertvolle Investition in einem der begehrtesten Wohngebiete.
Diese einzigartige Gelegenheit sollten Sie sich nicht entgehen lassen. Vereinbaren Sie noch heute einen Besichtigungstermin und entdecken Sie Ihr neues Zuhause mit Rheinblick in Grenzach-Wyhlen.
Kaufnebenkosten
- 5% Grunderwerbssteuer
- ca. 1,5 % Notarkosten/ Grundbuch
Lagebeschreibung:
Die angebotene Etagenwohnung befindet sich in einer malerischen Lage in Grenzach-Wyhlen, einer charmanten Gemeinde im Südwesten Deutschlands. Diese Wohngegend zeichnet sich durch ihre unmittelbare Nähe zum Rhein aus, was den Bewohnern einen atemberaubenden Blick auf den Fluss bietet. Grenzach-Wyhlen liegt im sonnenverwöhnten Dreiländereck, das Deutschland, die Schweiz und Frankreich miteinander verbindet. Hier genießen Sie nicht nur die Vorteile einer ruhigen und naturnahen Umgebung, sondern auch die exzellente Anbindung an die nahegelegenen Städte Basel und Lörrach, die eine Vielzahl von kulturellen und wirtschaftlichen Möglichkeiten bieten. Die idyllische Lage der Wohnung kombiniert die beste Anbindung mit einem hohen Maß an Lebensqualität und vereint ländlichen Charme mit städtischer Erreichbarkeit. Dienstleistungen des täglichen Bedarfs, Schulen und Freizeitmöglichkeiten sind bequem erreichbar und tragen so zu einem komfortablen und vielseitigen Lebensstil bei.Ausstattung:
- Personenaufzug
- Balkon
- Unterkellert
Energieausweis:
- A+
- A
- B
- C
- D
- E
- F
- G
- H
- Baujahr:
- 1966
- EndenergieVerbrauch:
- 111 kWh/(m²a)
- Energieausweis:
- Verbrauchsausweis
- Energieeffizienzklasse:
- D
- Energieausweis gültig bis:
- 06.05.2029
- wesentlicher Energieträger:
- Gas
Sie wollen mehr erfahren?
Wenn Sie uns eine Nachricht über das Kontaktformular senden, melden wir uns schnellstmöglich bei Ihnen:






















