Du bist hier: Startseite1 / Immobiliendetails

Gelände
Sicht auf das Casino
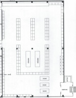
Grundriss Penny Verkaufsraum
Grundriss Penny Nebenräume

Gewerbeobjekt in guter Lage und Zukunftsperspektive

2.350.000 €
4.673 m²
Grundstück
1983
Baujahr

Energieausweis:

  • A+
  • A
  • B
  • C
  • D
  • E
  • F
  • G
  • H
0
30
50
75
100
130
160
200
250
>250
Baujahr:
1983
EndenergieVerbrauch:
58,5 kWh/(m²a)
Energieausweis:
Verbrauchsausweis Gewerbe
Energieeffizienzklasse:
B
Energieausweis gültig bis:
11.03.2035
wesentlicher Energieträger:
Gas
Baujahr lt. Energieausweis:
2015
Hier steht Ihnen ein Gewerbeobjekt mit ca. 1.850 qm zum Kauf zur Verfügung.
Das Gewerbeobjekt ist in vier verschiedene Gewerbeeinheiten aufgeteilt.
Die größte Gewerbeeinheit mit ca. (…)
zur Detailansicht