Gewerbeobjekt in guter Lage und Zukunftsperspektive
Beschreibung:
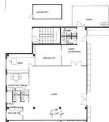
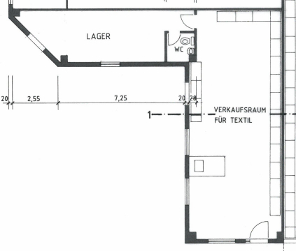
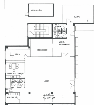
Hier steht Ihnen ein Gewerbeobjekt mit ca. 1.850 qm zum Kauf zur Verfügung.Das Gewerbeobjekt ist in vier verschiedene Gewerbeeinheiten aufgeteilt.
Die größte Gewerbeeinheit mit ca. 850qm ist an den Pennymarkt vermietet, dann gibt es noch eine Einheit mit ca. 250qm, diese ist seit vielen Jahren als Spielhalle vermietet. Die Gewerbeeinheit mit 100qm ist ebenfalls fest mit einem 5-Jahresvertrag vermietet. Die weitere Gewerbeeinheit mit ca. 650qm ist bei uns derzeit zur Vermietung ausgeschrieben.
Auf dem Außengelände stehen ca. 70 Stellplätze zur Verfügung.
Sie können das Objekt erwerben und einen Teil selbst nutzen, oder es komplett vermietet von uns übernehmen.
Die Gewerbeeinheit wurde durchgehend instandgehalten.
2015 wurde die Heizung ausgetauscht (Kosten ca. 23.000 Euro), hier wird es Ende des Jahres einen neuen Energieausweis geben.
2015 wurde auch das Dach über der Wohnung mit ca. 200 qm erneuert und isoliert (Kosten ca. 40.000 Euro).
2023 wurden 250 qm des weiteren Dachs großflächig neu abgedichtet (Kosten ca. 30.000 Euro)
Erwähnenswert ist auch, dass schräg gegenüber des Objekts ein Zentralklinikum gebaut wird, sowie an der alten Papierfabrik ein Wohnareal mit über 100 Wohnungen entstehen wird, was im allgemeinen den Standort auf Zukunftssicht sehr interessant macht.
Bei Vollvermietung beläuft sich die Jahreskaltmiete auf ca. 132.000 Euro.
Die Erhaltungsrücklage zum 31.12.2024 betrug 73.855,25 €.
Lagebeschreibung:
Durch die perfekte Lage nahe der Bundesstraße ist es sehr einfach, für Gäste zu erreichen.Wenn nicht per Auto, kann es auch durch die 4 Gehminuten entfernte Bushaltestelle erreicht werden.
Weitere Zeile:
Bushaltestelle: 350 m
Bahnhof: 900 m
Edeka: 900 m
Schweizer Grenze: 200 m
Zürich: 60 km
Waldshut: 15 km
Lörrach: 45 km
Ausstattung:
- Unterkellert
Energieausweis:
- A+
- A
- B
- C
- D
- E
- F
- G
- H
- Baujahr:
- 1983
- EndenergieVerbrauch:
- 58,5 kWh/(m²a)
- Energieausweis:
- Verbrauchsausweis Gewerbe
- Energieeffizienzklasse:
- B
- Energieausweis gültig bis:
- 11.03.2035
- wesentlicher Energieträger:
- Gas
- Baujahr lt. Energieausweis:
- 2015
Ausstattungsbeschreibung:
Gewerbeeinheit ca. 650qm wird gerade vermietetGewerbeeinheit ca. 250qm als Spielhalle vermietet
Gewerbeeinheit ca. 850qm an den Pennymarkt vermietet
Gewerbeeinheit ca. 100qm vermietet
ca. 70 Stellplätze
Sonstige Angaben:
Verpassen Sie keine Immobilie mehr!Unser komplettes Immobilienangebot finden Sie immer zuerst auf www.remax.de.
Gerne helfen wir Ihnen auch beim Verkauf oder der Vermietung Ihrer Immobilie. Wir freuen uns sehr, wenn Sie uns weiterempfehlen.
Sie wollen mehr erfahren?
Wenn Sie uns eine Nachricht über das Kontaktformular senden, melden wir uns schnellstmöglich bei Ihnen:






















