Interessante Chance von Alex Maier: 3-Zi-EG-Wohnung in Wyhlen mit TG, Freisitz und EBK!
Beschreibung:
Verkaufsexposé – Gepflegte 3-Zimmer-Eigentumswohnung mit Terrasse und TG-Stellplatz in Grenzach-WyhlenObjektbeschreibung
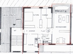
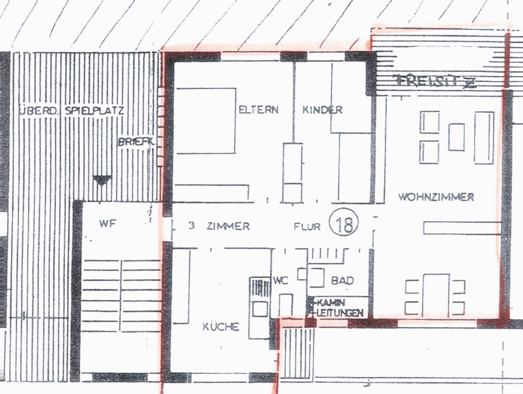
Zum Verkauf steht eine gepflegte 3-Zimmer-Erdgeschosswohnung in zentraler Lage von Grenzach-Wyhlen. Die Wohnung überzeugt durch ihre gut durchdachte Raumaufteilung, eine gemütliche Terrasse sowie einen Tiefgaragenstellplatz. Dank Modernisierungen im Jahr 2014 befindet sich die Immobilie in einem soliden, bezugsfertigen Zustand und eignet sich ideal sowohl für Eigennutzer als auch Kapitalanleger.
Eckdaten:
Wohnfläche: ca. 78,3 m²
Zimmer: 3
Badezimmer: 1
Zusätzliches WC
Terrasse: ca. 8 m²
Etage: Erdgeschoss
Baujahr: 1967
Modernisierung: 2014
Stellplatz: 1 Tiefgaragenstellplatz inklusive
Ausstattung:
Helle Räume mit großen Fenstern
Gepflegter Laminat-/Fliesenboden
Tageslichtbad, gut in Schuss gehalten
Einbauküche vorhanden
Fenster in gehobenem Zustand
Terrasse mit Blick ins Grüne
Kellerraum zur Wohnung gehörend
Lage
Die Wohnung befindet sich in Grenzach-Wyhlen, einer beliebten Gemeinde am Hochrhein mit direkter Nähe zur Schweizer Grenze. Einkaufsmöglichkeiten, Schulen, Kindergärten und medizinische Einrichtungen sind in wenigen Minuten fußläufig erreichbar. Auch Freizeitangebote und Sporteinrichtungen befinden sich in direkter Umgebung. Die Anbindung nach Basel, Lörrach und Rheinfelden ist hervorragend – ideal für Berufspendler.
Kaufpreisempfehlung
Auf Basis aktueller Marktanalysen wird der Wert der Immobilie auf ca. 259.000 € geschätzt. Der Preis der Immobilie kann allerdings nach oben wir nach unter verhandelt werden.
Angebotspreis: 259.000,-€ zzgl. 3,57% Käuferprovision
Sonstiges
Die Immobilie ist frei nach Absprache verfügbar.
Energieausweis liegt zur Besichtigung vor.
Ihr Ansprechpartner
Alexander Maier
RE/MAX – Immobilienvermittlung
???? +49 7621 560 81 62
Ausstattung:
- Terrasse
- Unterkellert
Energieausweis:
- A+
- A
- B
- C
- D
- E
- F
- G
- H
- Baujahr:
- 1967
- EndenergieVerbrauch:
- 91,3 kWh/(m²a)
- Energieausweis:
- Verbrauchsausweis
- Energieeffizienzklasse:
- C
- Energieausweis gültig bis:
- 13.01.1935
- wesentlicher Energieträger:
- Öl
- Baujahr lt. Energieausweis:
- 2001
Sie wollen mehr erfahren?
Wenn Sie uns eine Nachricht über das Kontaktformular senden, melden wir uns schnellstmöglich bei Ihnen:
























