Neuer Preis! Großes Reihenhaus mit Einliegerwohnung in ruhiger Lage von Lö-Stetten
Beschreibung:
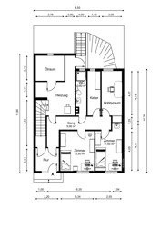
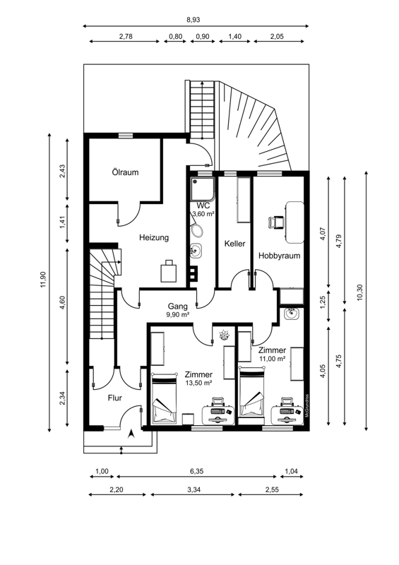
Willkommen in Ihrem neuen Zuhause im charmanten Lörrach - einem großzügigen Reihenmittelhaus mit Einliegerwohnung, das durch seine solide Bauweise und ideale Raumaufteilung besticht. Diese Immobilie, erbaut im Jahr 1970, überzeugt nicht nur durch ihre ruhige Lage, sondern auch durch zahlreiche Ausstattungsmerkmale, ideal sowohl für Familien als auch für Mehrgenerationskonzepte.Dieses Haus, eingebettet auf einem 286 m² großen Grundstück, bietet eine großzügige Wohnfläche von ca. 164 m², verteilt auf sieben helle Zimmer. Im Erdgeschoss befindet sich der Haupteingang, der Ihnen Zugang zur Einliegerwohnung, dem Keller, sowie zum Obergeschoss (Hauptwohnung) gewährt.
Die ca. 48 m² große Einliegerwohnung besteht aus drei gut geschnittenen Zimmern, einer Küche und einem Bad, fast alle lichtdurchflutet und einladend. Sie eignet sich ideal als separate Wohneinheit oder als Bürobereich für Homeoffice.
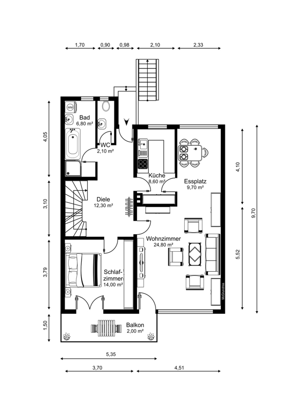
Die Hauptwohnung erstreckt sich über etwa 125 m² und verteilt sich auf das Ober- und Dachgeschoss. Das großzügige Treppenhaus führt zu insgesamt vier großen Zimmern, die zusätzlich durch eine offene Küche, ein Badezimmer und ein WC ergänzt werden. Der Balkon im Obergeschoss bietet einen angenehmen Ausblick, während die rückwärtige Terrasse eine ideale Entspannungsoase darstellt. Besonders hervorzuheben ist das beeindruckende Dachgeschosszimmer mit ca. 32 m², das vielfältige Nutzungsmöglichkeiten bietet. Zusätzlich steht Ihnen hier ebenfalls ein Badezimmer zur Verfügung.
Der ausgedehnte Keller bietet neben Stauraum einen direkten Zugang nach draußen und zum Freisitz. Hier sind auch die Heizungsanlage.
Die Außenanlage überzeugt durch eine reizvolle Terrasse, die sowohl aus dem Keller als auch aus der Hauptwohnung erreichbar ist, und eine Garage, die sich bequem unweit des Hauses befindet. Ergänzt wird das Gesamtangebot durch einen hübsch angelegten Vorgarten.
Lagebeschreibung:
Das Reihenmittelhaus befindet sich in einer attraktiven und ruhigen Wohngegend von Lörrach, im malerischen Südwesten Deutschlands. Die Stadt Lörrach besticht durch ihre äußerst günstige Lage in der dicht bewaldeten Region des Dreiländerecks, nahe der Grenzen zu Frankreich und der Schweiz. Dies bietet vielfältige Möglichkeiten für kulturelle Ausflüge, internationale Geschäftsbeziehungen und Freizeitaktivitäten im nahen Schwarzwald.Einkaufsmöglichkeiten, Schulen und Kindergärten sind in der unmittelbaren Umgebung vorhanden und gewährleisten eine bequeme Erreichbarkeit. Die Anbindung an den öffentlichen Nahverkehr ist sehr gut: Der Bahnhof Lörrach sowie diverse Buslinien bieten direkte Verbindungen in die umliegenden Städte und Stadtteile. Für Pendler ist auch die Nähe zur Autobahn A98, die eine kurze Strecke zur A5 darstellt, von Vorteil, wodurch sowohl die Fahrt nach Basel als auch zu weiteren Wirtschaftsmetropolen schnell und unkompliziert möglich ist.
Naturliebhaber profitieren von den zahlreichen Wanderwegen und Naherholungsgebieten der Umgebung. Die grüne Umgebung lädt zu Spaziergängen und Aktivitäten im Freien ein, während die Stadt durch ein abwechslungsreiches kulturelles Angebot, Gastronomie und Veranstaltungen besticht. Diese Lage vereint somit in idealer Weise urbanes Leben mit naturnaher Erholung.
Ausstattung:
- Balkon
- Terrasse
- Unterkellert
Energieausweis:
- Baujahr:
- 1970
Sonstige Angaben:
Kontaktieren Sie uns noch heute, um weitere Informationen zu erhalten oder einen Besichtigungstermin zu vereinbaren.Kaufnebenkosten
- 5% Grunderwerbssteuer
- ca. 1,5 % Notarkosten/ Grundbuch
Sie wollen mehr erfahren?
Wenn Sie uns eine Nachricht über das Kontaktformular senden, melden wir uns schnellstmöglich bei Ihnen:































